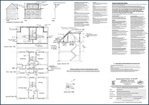
Proposed Loft Conversion to provide Additional Living Accomodation with Study & Playroom, Stowmarket

Proposed Property Elevations

Planning permission proposed loft conversion Stowmarket

Planning Permission Drawings

Building regulations drawing for loft conversion Stowmarket

CONTACT US FOR ARCHITECTURAL SERVICES SUFFOLK

Have a project in Suffolk? Get in touch…