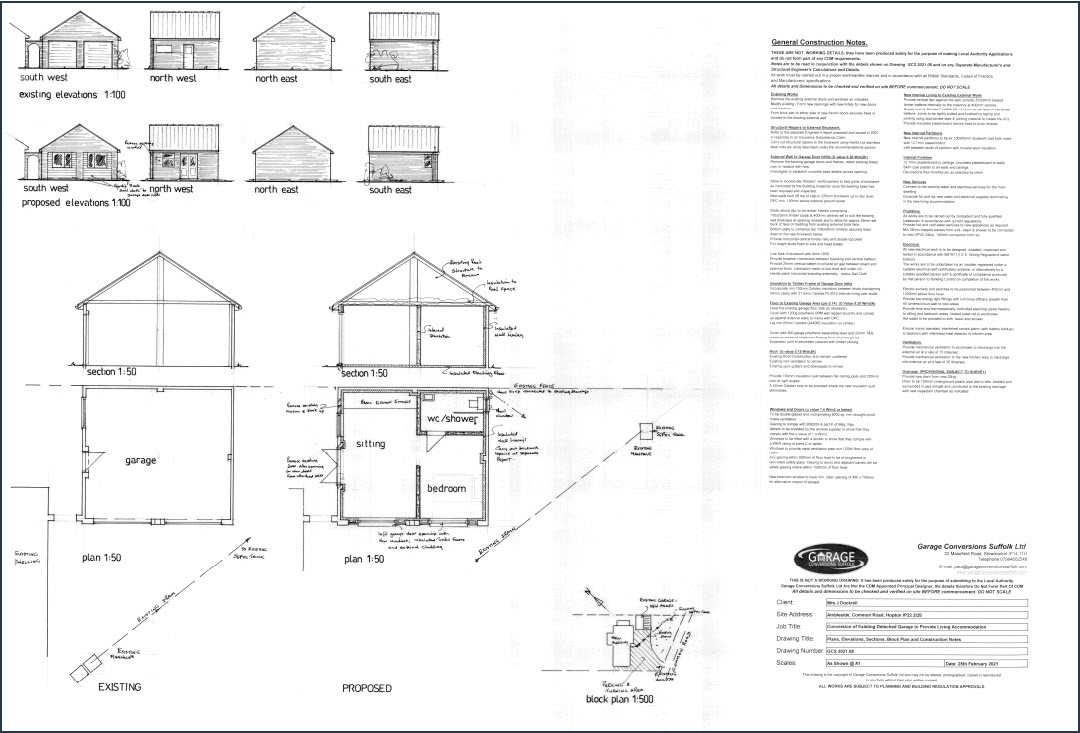
Planning for Garage Conversion Hopton

Existing and Proposed Building Elevations

Planning drawings Garage conversion Hopton

Planning Permission Drawings

Planning permission drawings Garage conversion Hopton

CONTACT US FOR ARCHITECTURAL SERVICES SUFFOLK

Have a project in Suffolk? Get in touch…