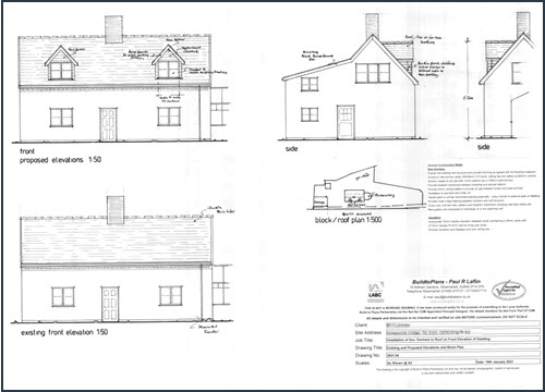
Planning Drawings for Dormer Windows in Roof, Ashbocking

Existing & Proposed Property Elevations

Ashbocking planning drawings for dormer windows in roof

Planning Permission Drawings

Ashbocking planning drawings for dormer windows in roof

CONTACT US FOR ARCHITECTURAL SERVICES SUFFOLK

Have a project in Suffolk? Get in touch…